Céčko vstává z popela. Jak se změní?
Listopad tohoto roku. Měsíc velkých očekávání, ale možná také velkého zklamání. Bude „Céčko“ stejné, tak jak ho pamatujete? Pravděpodobně ne, minimálně atmosféru, která na vás dýchla hned při vstupu, už asi nikdo nevrátí. Jaké ale tedy Céčko bude?
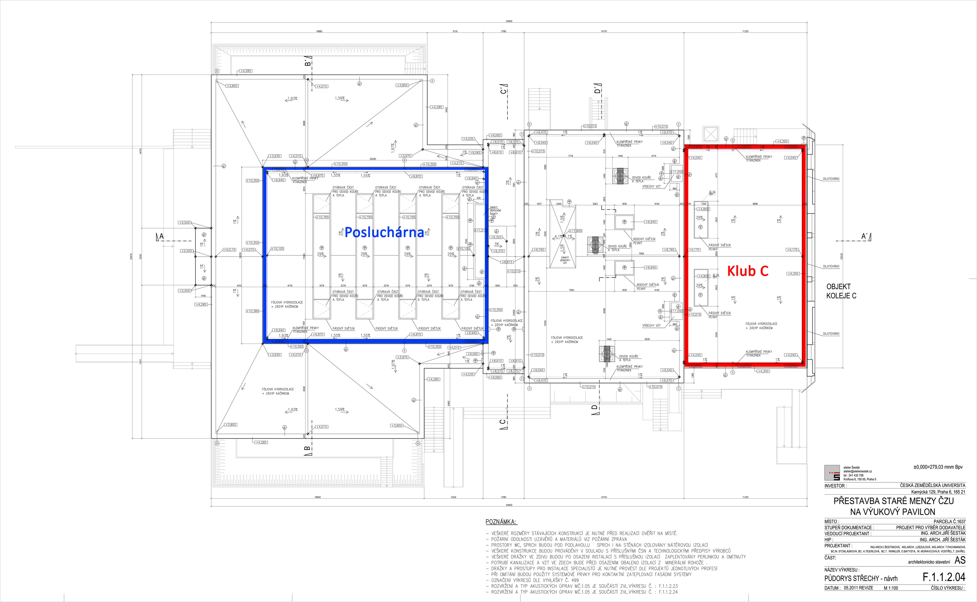
Rozhodně menší, o tom není pochyb. Jeho umístění bude podél koleje C a rozměry, o kterých se bavíme, jsou přibližně 11,4 metru na šířku a 20,7 metru na délku. Tzn. že celková zastavěná plocha Klubu C bude cca 356 metrů čtverečních. Viz půdorys výukového pavilonu.
K dispozici je i vizualizace projektu. Můžete se tedy podívat, jak bude pavilon, včetně „Céčka“, vypadat z pohledu od jihu, respektive severu.
Kromě Klubu C se v novém výukovém pavilonu, který bude patřit Provozně ekonomické fakultě a Institutu tropů a subtropů, buduje největší a nejmodernější posluchárna na ČZU pro 300 lidí.
Mrkni taky na tohle
Komentáře
sál odhadem 20x20m + prostor u baru + podium a vedle něj... a podle toho nákresu to vypadá, že do těch 10x20m se bude muset vejít i bar a záchody... "..už to nikdy nebude, tak jak to bylo dřív... "
Super, děkujeme za informace. Jen bych měl takovou menší výtku k závěrečné větě, kde říkáte, cituji: "buduje největší a nejmodernější posluchárna na ČZU pro 300 lidí.". S tím, že se jedná o nejmodernější poslouchárnu bych i souhlasil, nicméně nemá takhle náhodou SIC kapacitu 400 osob ;-)
nejdřív si betonový monstrum postavili žabičkáři a teď další hezký místo betonem zkurvili pefácí... Je na čase, aby si lesárna postavila třeba místo stadionu kvalitní výčep!!!
Josef, nech si ty komentáře!!! :D :D :D
však je to pravda! :D
bohužel i obsluha zmizí a už nikdy neuslyšíme: "PÁRKY! A SMAŽÁÁÁK!!!"
Ať si tam postaví co chtějí, ale ať nám vrátí náš starej bufet s lahvovym braníkem a sekanou za hubičku!
vraťte nám obsluhu!!! to by mohlo jít ne? a kdy to bude navštěvovatelné?




Směr Dejvická









Kolik mělo plochu staré Céčko?